Back To Listings

1445 Bonhill Road – Unit 14

Mississauga, Ontario Back To Listings Close

Features

  • Genuine Quality Construction
  • All First Quality Brick Buildings
  • Showroom/Office Space Built to Suit
  • Architecturally Designed Landscaping
  • Public Transit Accessibility
  • Dixie Road Exposure
  • Room For Expansion
  • Generous Parking
  • Air Conditioned Offices
  • Fully Sprinklered

Advantages

  • Energy Efficient
  • FIbreglass Roof Insulation
  • Insulated Garage Doors
  • Thermally Broken Window Frames
  • 16’ Clear Height
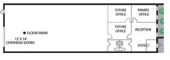
  • 12’ x 14’ Drive-in Garage Doors
  • Vestibule Entrances
  • Covered Exterior Front Entrances
  • Well Lighted Interior and Exterior

Interested in this property?

Contact us by phone or email to arrange for a showing.

Site Plan

Click To Enlarge

Click To Enlarge

Interior Typical

Click To Enlarge

Click To Enlarge

Click To Enlarge

Click To Enlarge

Interested in one of our properties?

Contact us by phone or email to arrange for a showing.