Back To Listings

1633 Trinity Drive

Mississauga, Ontario Back To Listings Close

Features

  • Genuine Quality Construction
  • All First Quality Brick Buildings
  • Showroom/Office Space Built to Suit
  • Architecturally Designed Landscaping
  • Public Transit Accessibility
  • Dixie Road Exposure
  • Room For Expansion
  • Generous Parking
  • Air Conditioned Offices
  • Fully Sprinklered

Advantages

  • Energy Efficient
  • FIbreglass Roof Insulation
  • Insulated Garage Doors
  • Thermally Broken Window Frames
  • 18’ Clear Height
  • Drive-in and Truck Level Garage Doors
  • Vestibule Entrances
  • Covered Exterior Front Entrances
  • Well Lighted Interior and Exterior

Interested in this property?

Contact us by phone or email to arrange for a showing.

Site Plan

Click To Enlarge

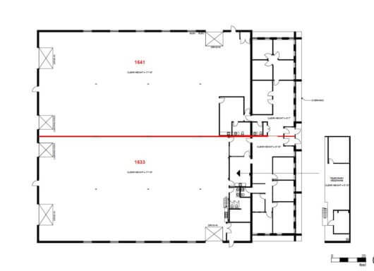
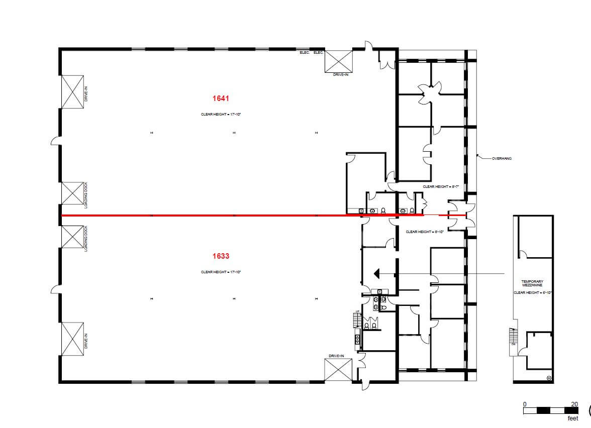
Floor Plan

Click To Enlarge

Interested in one of our properties?

Contact us by phone or email to arrange for a showing.